Creo que
ya había mencionado que estamos en el proceso de comprar una casa. Como el
proceso de construcción es largo, queríamos mantenerlo en secreto hasta que
estuviera lista y nos pudiéramos mudar, por todo aquello de no contar los
pollitos antes de nacer y evitar tener que inventar 7 formas diferentes de
decir "todo sigue igual" cada vez que nos preguntaran "Como va
la casa?"
Por
supuesto, fuimos tan exitosos manteniendo este secreto como lo fuimos evitando
que la gente se enterara que planeábamos venirnos a Australia. Fueron alrededor
de 4 años respondiéndole a mis amigos: que si, la idea todavía seguía en pie;
que solo toma su tiempo; que si los voy a extrañar cada día; que la distancia
nunca podría destruir nuestra amistad; que ahora la tecnología nos va a
permitir comunicarnos cada día; que aquí
en Venezuela no lo tengo todo; que no,
si me aprueban la visa no voy a terminar durmiendo bajo un puente; que no solo
los cobardes huyen, que más tarado eres tú, que yo tampoco se para que somos
amigos y que mejor dejamos esta amistad hasta aquí.
Pero como
necesitaba desahogarme y de alguna forma externalizar toda esta aventura de
alegrías y tristezas que es comprar una casa, decidí contarle todo a mi mayor
confidente que siempre ha sabido guardar celosamente todos mis secretos: mi
Diario.
En esto
momentos, estamos medio parados con el proceso. Los planos están terminados
pero tienen alrededor de 5 meses con El Desarrollador, Lightsview, que es la
empresa privada que se encarga de velar porque toda la zona sea desarrollada de
acuerdo a su visión: que las casas sean
bonitas, que sean ecológicas, que hayan suficientes áreas verdes, que no se
utilicen materiales feos que puedan desvalorar otras casas aledañas, etc.
Hablando
con la persona que me asigno la constructora para que yo pudiera fastidiar a
gusto, me cuenta que Lightsview ha sido muy detallista y que les ha devuelto
los planos como 10 veces por pequeños cambios. Lo peor, es que una vez que
Lightsview apruebe los planos tienen que pasar por el consejo para la
aprobación final lo cual puede tomar de
3 a 4 meses más.
Como
ahora tenemos todos nuestros gastos súper limitados, con la idea de tener
suficiente dinero ahorrado para pagar alquiler y construcción al mismo tiempo,
se siente como si tuviese mi vida en pausa y no me queda más que esperar y
esperar para que me entreguen mi casa y poder recomenzar mi vida nuevamente. Se
siente casi igual al proceso de aplicación para mi visa australiana: incertidumbre, espera, gastos, espera, poner
tu vida en pausa, espera, mantener el secreto, espera, ahorrar todo lo que
puedas y no comprarte ni un helado, espera,
etc y mas espera.
Ya ves!
Ya creo que me siento mejor. Ahora si les muestro los modelos en 3D que nos
envió la constructora.
Este es
el primer modelo 3D que la constructora nos envió. Apenas abrimos la imagen
nuestros ojos se agrandaron. Nos encantó, es decir poco. Tuvimos que esperar un
par de días mas para que la constructora nos enviara un presupuesto inicial de
cuanto podía costar. Cuando finalmente recibimos el correo nos daba miedo
abrirlo, ya que no queríamos perder todas las ilusiones que nos habíamos hecho
de vivir en un lugar así. $342k, sin
contar el costo de la tierra ni el costo de todos los extras que sabíamos que
íbamos a querer agregarle en los interiores. Si podíamos pagarlo, pero muy
cerca de nuestro presupuesto máximo de $550k maaaxxxxximo porque en realidad
esperábamos gastar alrededor de $480k
Cuando
primero vimos el modelo Bexi y yo pensamos que nunca habíamos esperado comprar
una casa asi, pero después de unos días habíamos tomado la decisión de que si
íbamos a pasar por todo el proceso de comprar una casa, sería solo para vivir
en un lugar asi. Bexi emocionada llamo a Enzo para mostrarle la casa, Enzo vio
la casa detalladamente y la miro con ojos que decían "Por esto me sacaste
de mi juego de Wii" (Sus ojos decían esto en inglés, pero yo decidí
traducirlo aqui para tu comodidad) y se fue.

Después
de varias negociaciones así quedo el look final de la casa. Reconocemos que no
es tan bonita como el primer modelo pero es cerca de $20k más barata,
Justamente lo que pensamos gastar en los interiores. Quitamos el balcón de al
frente porque ya teníamos uno en la parte de atrás que daba hacia la reserva en
lugar de la calle y pensamos que un 2do balcón solo iba a estar allí llevando
polvo. Esto nos ahorró alrededor de $8k. Movimos toda la casa hacia adelante lo
cual nos permitió 1.5 m más de patio y jardín entre la casa y el garaje lo cual
es importante para mí.
También
achicamos el largo total de la casa en medio metro más que también fueron a
para en el patio/jardín. Quitamos
algunas otras cosas en el interior como las bañeras y el presupuesto se
redujo a $327k (sin contar terreno y selecciones interiores). Aceptable.
Estos son
los planos de la casa. Noten que los planos son bastante grandes así que tuve
que cortarlos para que las imágenes no fuesen tan pequeñas (he he cortarlos
para que las imágenes no fuesen tan pequeñas suena como a lograr el efecto
contrario)
En
la parte de arriba se ve la vista de arriba y abajo la vista desde el frente
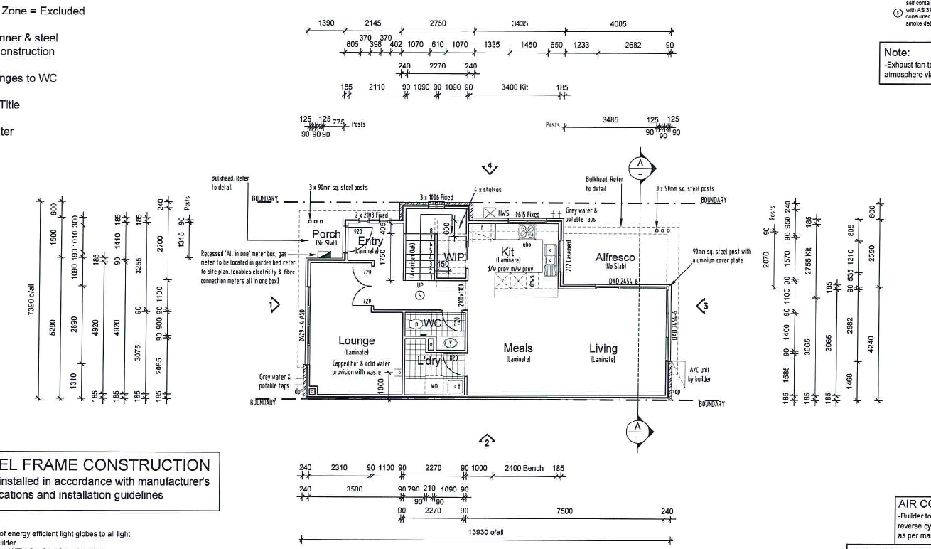
Aquí se
ve el piso de abajo. El área llamada "Lounge" la vamos a destinar
para la peluquería de Bexi que ya está produciendo un buen dinero así que
finalmente le podemos dar un espacio más grande. Una segunda opción también
estaba siendo evaluada en la que se podía transformar en un área de
esparcimiento para toda la familia en la que se hubiese podido tener asientos
que se muevan al ritmo de las películas, Wii U, Mesa de pool, mesa de ping pong
y un pequeño bar. Un lugar seguro y sin discriminaciones donde toda la familia
y sobre todo Enzo puedan disfrutar. Sin embargo, esa opción fue irracionalmente
vetada por gente que simplemente no le importa que la familia tenga un lugar
para pasar tiempo juntos
El are de
la cocina/comedor/sala/al fresco simplemente nos encanta. La distribución nos
parece perfecta. El al fresco queda debajo del balcón que le servirá de techo.
Esta va a ser el área para las parrillas con nuestros amigos que hacemos
frecuentemente. La cocina tiene una ventana que da hacia el al fresco lo cual
va a permitir mover cosas fácilmente entre la cocina y el exterior. En un
futuro, dentro de unos 47 años cuando nos recuperemos económicamente, esperamos hacerle un sobrepiso de madera
(deck) que va a ser que se vea muy especial. Ya empece a leer libros de
carpintería. ;)
El área
de comedor (meals) y la sala (living) es un solo gran espacio. Lo que hace esta
área especial es que tiene acceso inmediato a 3 áreas. La cocina, el al fresco
y el patio. Adicionalmente, la separación con el al fresco y el patio va a
estar hecha de puertas de vidrio grandes lo cual va a permitir claridad y una
excelente vista hacia el fabulo jardín que vamos a tener. Ya empecé a leer
libros de jardinería también ;)
Este es
el piso de arriba. Donde van a estar los cuartos y una pequeña sala donde
espero, nadie se oponga, y pueda poner mi área de esparcimiento. No va a ser
muy grande así que no va a tener ni mesas de ping pong, ni pool, ni fusbol.
Pero trato de no pensar en eso y enfocarme mas bien en los positivos y es que
la familia va a tener un área para pasar tiempo juntos y que me voy a tener mi
refrigeradorcito con cervezas y que me voy a comprar una súper televisión para
ver los partidos de la NBA.
En los
baños tomamos una decisión de la que ahora nos arrepentimos, mandamos a quitar
la bañera que venían en el plano base. En Venezuela no es algo que se usa mucho
y nosotros ciertamente NUNCA las utilizamos (la que yo tenia en mi apartamento
en Vzla), pero justamente después de esto, Enzo se empezó a bañar en la bañera
y ya no se baña en ningún otro sitio que no sea la bañera. Así es la vida. :(
Yo le
había propuesto a Bexi que uniéramos el baño del cuarto principal con el baño
que está al frente de la escalera e hiciéramos un único baño gigante, pero era
una batalla perdida. Ella nunca me dio una respuesta satisfactoria, pero la
forma como yo lo interprete es que para las mujeres el baño es muy importante,
un sitio donde puedan darse un tiempo para ellas. Un espacio único de
relajación en la casa… Algo así como el área de esparcimiento con mesa de ping
pong y pool que Enzo no podrá tener.
Estos son
los frentes y los lados de la casa. El lado que da hacia la reserva nos parece
bellísimo. Se puede ver el balcón. El área de ladrillo donde están las ventanas
verticales. Bien bonito. El frente, ahora me parece un poco plano y si pudiese
lo cambiaria, pero es algo que en realidad no sabré con certeza hasta que la
casa este lista.
Estas
imágenes son del garaje. Caben 2 carros. Nosotros esperamos usar un puesto para
guardar nuestro carro y el otro puesto para acaparar peroles. Esto último es
súper importantísimo. Nosotros nunca tuvimos cosas guardadas en Vzla, pero a
los 2 años de habernos mudado a un país del 1er mundo ya teníamos todo un
garaje lleno de cosas. Cada año , limpiamos y regalamos la mitad de las cosas y
el siguiente esta full otra vez. Aunque
quizás un mejor uso para esta área seria armar esas camas y esos muebles que
están allí y convertir el estacionamiento en un área de esparcimiento para la
familia. Le voy a comentar a Bexi a ver que dice.
Una de
los cambios que hice aquí, fue cortar la pared que da hacia el patio (Elevación
3). Le quite alrededor de medio metro arriba para colocarle como una cuadricula
de madera que permita que la luz y ventilación entre. También corte el lado
izquierdo de la pared. La idea es que el estacionamiento no se vea como un
cuarto oscuro con 4 paredes, sino como un área abierta. En un futuro, después de que me haya
recuperado del costo de hacer el deck, dentro de unos 17 años mas, le colocare
slats horizontales, de manera que haga que mantenga la apertura y a la ves
evite un poco que desde la casa se vea todo lo que hay allí. Uno nunca sabe
cuándo se pueda comprar una mesa de pool o colocar un barcito y se necesite un
poco de privacidad.
Hasta
luego. En la próxima entrada voy a escribir un poco acera del terreno que
compramos